Casa indipendente in vendita

San Marcello Piteglio, Via Ugo Schiano - Campo Magno
€ 200.000
Prezzo aggiornato
9 locali 9 locali
281 Mq 281 Mq
3 bagni 3 bagni

Casa indipendente in vendita

San Marcello Piteglio, Via Ugo Schiano - Campo Magno

Descrizione annuncio

SAN MARCELLO PITEGLIO LOC. CAMPO MAGNO

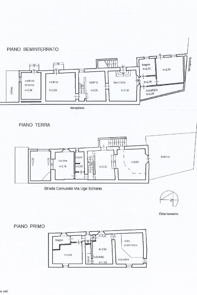
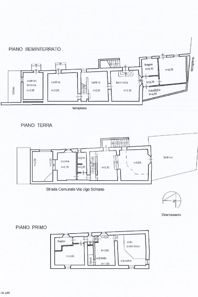
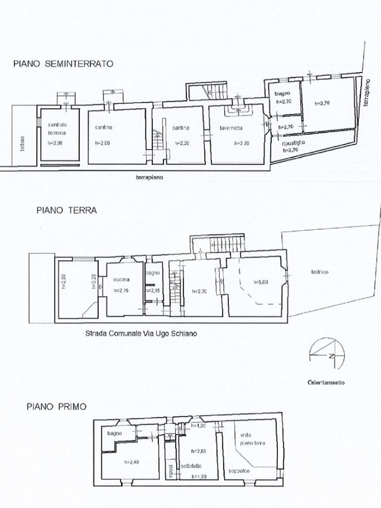
NOSTRA ESCLUSIVA - Nella tranquillità della Montagna Pistoiese, in posizione panoramica, proponiamo in vendita casa indipendente in stile rustico, libera su quattro lati, che si sviluppa su tre piani fuori terra.

Salendo da scale esterne si accede al piano primo nell' ingresso, da cui poi si entra nello spazioso soggiorno con camino, con doppi affacci, angolari, sull'esterno, di cui uno su lastrico solare. Continuando nello sviluppo del primo piano si trova la cucina abitabile e a seguire la sala da pranzo con altro camino, oltre a bagno ,finestrato con doccia.

Salendo al piano superiore, si trovano le due camere medie, il bagno finestrato con doccia, e il caratteristico ballatoio, praticabile, che affaccia sul soggiorno al primo piano.

Accedendo inoltre al piano terra, con possibilità di entrata anche direttamente dall'esterno, troviamo il soggiorno in ingresso collegato alla zona notte tramite comodo disimpegno dove troviamo la camera matrimoniale, con accesso all'esterno tramite porta finestra direttamente affacciata al giardino, ed il terzo bagno finestrato, a completare il piano troviamo poi la cucina abitabile con comodo ripostiglio, e altra ampia stanza, anch'essa comunicante con il giardino tramite porta finestra.

I soffitti della intera proprietà sono in parte con travi a vista e in parte perlinato. I pavimenti del primo piano sono in parquet.

La proprietà si presta benissimo alla suddivisione in due unità abitative.

Completa la proprietà ampio resede , ottimo per parcheggiare almeno tre automobili, e grande giardino lievemente terrazzato e completamente recintato, oltre che porzione di bosco, il tutto di pertinenza privata, per un totale di ca 20mila mq di spazi esterni.

L'immobile è libero da subito.

Fissa un appuntamento per vedere l'immobile chiamando allo 3514298855 o 05731960366 oppure tramite mail pt1o1

Mostra tutto

Nelle vicinanze

Scuole Scuole
Scuola Elementare e Materna
1,5 Km
Farmacia Farmacia
Farmacia di Maresca
1,4 Km
Ambulatori Medici
1,4 Km
Supermercati Supermercati
Forno Tredici
660 m
Coop
1,4 Km
Negozi Negozi
Gigli outlet
1,4 Km
Gigli Calzature
1,4 Km
Merceria Tiziana
1,5 Km
Da Dany abbigliamento
1,5 Km
L'angolo sfizioso di Cristina e Marco
1,5 Km
Bar Bar
Bar MAresca
1,5 Km
Bar Karisma
1,5 Km
Circolo La Lama
1,7 Km
Ristoranti Ristoranti
Pizzeria Il Vicolo
1,5 Km
La vecchia cantina
1,5 Km
Le Ginestre
1,9 Km
Il capannone
2,8 Km
Osteria de' Mammalucchi
2,9 Km
Mostra tutto

Caratteristiche

Rif.:
61154211
Piano:
Su più livelli di 2
Totale piani:
2
Posti auto:
3
Terrazzi:
1
Camere da letto:
3
Mostra tutto
Prezzo Prezzo
€ 200.000
Rata mutuo Rata mutuo
€ 950 / mese
Spese annue Spese annue
€ 0
Proponi il tuo prezzoProponi il tuo prezzo

Classe Energetica

G
G
G
G
G
G
G
G
G
EP globale non rinnovabile:
123.00 kW h/m² anno
EP globale rinnovabile:
123.00 kW h/m² anno
EP invernale del fabbricato:
EP estiva del fabbricato:
Anno di costruzione:
1967
Riscaldamento:
Autonomo
Tipo impianto:
A radiatori
Tipo alimentazione:
GPL

Prezzo ridotto di €1 (10%%)

Ti interessa visionare l'immobile?

Fissa un appuntamento  Fissa un appuntamento

Richiedi informazioni

Clicca su Leggi per aprire l'informativa
* Questi campi sono obbligatori

Calcola il tuo mutuo

Semplice e senza impegno
Anticipo

( % )
Mutuo

( % )

pochi semplici passi

inserisci i tuoi dati
Questionario completato
Grazie per aver richiesto un appuntamento senza impegno con un nostro Consulente del Credito e Assicurativo.

Hai inserito correttamente tutti i dati necessari e a breve riceverai una e-mail con un link da convalidare per inviare i tuoi dati.
Affiliato
Studio Pistoia Ovest Sas
Viale Adua, 130/C 51100 Pistoia (PT)

Il nostro staff


  • Alessandro Mascani
    Affiliato
Viale Adua, 130/C 51100 Pistoia (PT)
Zona: Pistoia
Mostra su mappa
Orari: Lun - Ven 9:00 - 13:00 / 15:00 - 20:00 Sab 9:00 - 13:00 / 15:00 - 18:00
Affiliato
Studio Pistoia Ovest Sas
Viale Adua, 130/C 51100 Pistoia (PT)

2026 Tecnocasa Franchising S.p.A. - P. IVA 08365160152 - Via Monte Bianco 60/A 20089 Rozzano (MI). Ogni agenzia ha un proprio titolare ed è autonoma. Privacy policy | Policy utilizzo | Cookie policy