Casa indipendente in vendita

Pistoia, Via Bengasi - Pistoia Ovest
€ 355.000
Prezzo aggiornato
6 locali 6 locali
184 Mq 184 Mq
2 bagni 2 bagni

Casa indipendente in vendita

Pistoia, Via Bengasi - Pistoia Ovest

Descrizione annuncio

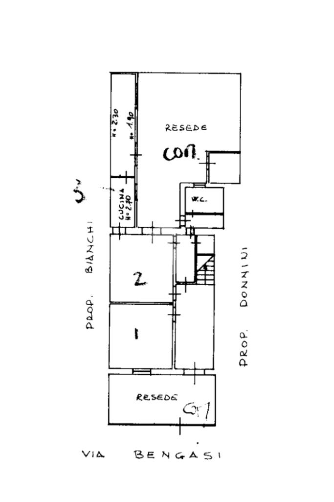
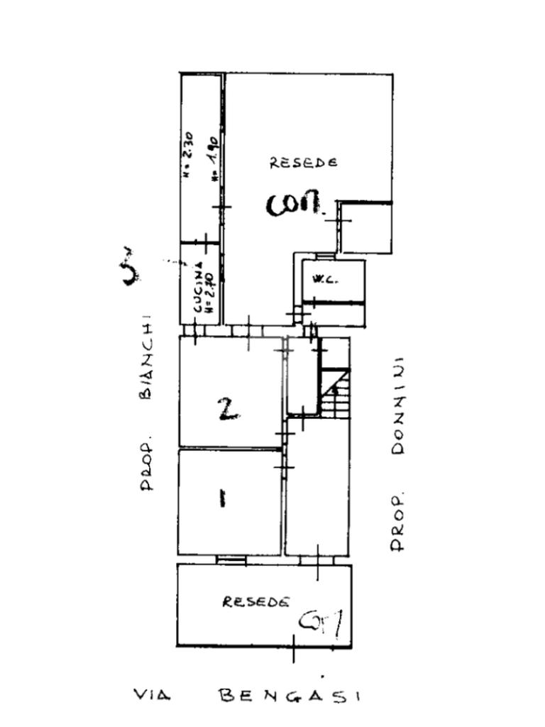
PISTOIA OVEST - VIA BENGASI

NOSTRA ESCLUSIVA - Proponiamo in vendita terratetto indipendente, libero sui due lati da ristrutturare, in zona comoda e vicina a tutti i principali servizi.

Si accede all'immobile dalla resede frontale da trasformare in un comodo posto auto, siamo accolti da ampio ingresso che ci porta al luminoso soggiorno ed alla sala da pranzo con tinello.

Dalla sala da pranzo si accede al giardino privato, dove troviamo due ulteriori ambienti, uno ad uso rimessaggio ed uno ad uso lavanderia, completa il piano terra il comodo bagno di servizio.

Salendo le scale interne al piano ammezzato si ha il bagno principale, finestrato con vasca, al primo piano dell'immobile si sviluppa la zona notte composta da due camere da letto matrimoniali ed una singola con terrazzo.

Il secondo ed ultimo piano dell'immobile è caratterizzato da un comodo lastrico solare e da un'ampia stanza mansardata.

Fissa un appuntamento chiamando allo 3514298855 o 05731960366 oppure tramite mail pt1o1

Mostra tutto

Nelle vicinanze

Trasporto pubblico Trasporto pubblico
Pistoia Ovest
Pistoia Ovest
440 m
stazione di Pistoia
stazione di Pistoia
1,1 Km
Trasporto pubblico
150 m
S. Biagio, 102 Fr.
S. Biagio, 102 Fr.
620 m
Ricariche auto elettriche Ricariche auto elettriche
COOP Pistoia Sala Soci | EnelX
180 m
COOP Pistoia | EnelX fast
360 m
Parcheggio Stazione di Pistoia | EnelX
1,2 Km
Esselunga di Porta Nuova
1,3 Km
Punto Enel di Pistoia | EnelX
2,0 Km
Scuole Scuole
Scuole
240 m
I.T.I.S. Silvano Fedi
320 m
Scuola Media Statale Guglielmo Marconi
630 m
Anna Frank
630 m
Istituto A. Pacinotti
790 m
Farmacia Farmacia
Farmacia Comunale 1
260 m
Farmacia
810 m
Farmacia De Candia
980 m
Nannucci
990 m
Farmacia Banci
1,1 Km
Ospedali Ospedali
Ospedale San Jacopo
1,6 Km
Pronto Soccorso Ospedale San Jacopo
1,6 Km
Supermercati Supermercati
Coop
330 m
Conad City
470 m
La via dell'orto
480 m
PENNY
530 m
Lidl
950 m
Negozi Negozi
Il Forno
230 m
Negozi
730 m
Vanity Chic
880 m
Miki Mode
880 m
L'Emporio di Giulia
880 m
Bar Bar
Lo squalo
70 m
Caffè 41
270 m
Pinolo II
310 m
Cilea
370 m
La Bodega
400 m
Ristoranti Ristoranti
Luna Rossa
410 m
Malebolge
420 m
L'Angolo da Vito
480 m
Tasselli
490 m
Trattoria San Vitale
610 m
Mostra tutto

Caratteristiche

Rif.:
61190956
Totale piani:
3
Balconi:
1
Terrazzi:
1
Camere da letto:
2
Arredamento:
Parziale
Mostra tutto
Prezzo Prezzo
€ 355.000
Rata mutuo Rata mutuo
€ 1.686 / mese
Spese annue Spese annue
€ 0
Proponi il tuo prezzoProponi il tuo prezzo
Immobile valutato con T·Valuta

Classe Energetica

G
G
G
G
G
G
G
G
G
EP globale non rinnovabile:
124.00 kW h/m² anno
EP globale rinnovabile:
23.00 kW h/m² anno
EP invernale del fabbricato:
EP estiva del fabbricato:
Anno di costruzione:
1967
Riscaldamento:
Autonomo
Tipo impianto:
A radiatori
Tipo alimentazione:
Metano

Prezzo ridotto di €1 (4%%)

Ti interessa visionare l'immobile?

Fissa un appuntamento  Fissa un appuntamento

Richiedi informazioni

Clicca su Leggi per aprire l'informativa
* Questi campi sono obbligatori

Calcola il tuo mutuo

Semplice e senza impegno
Anticipo

( % )
Mutuo

( % )

pochi semplici passi

inserisci i tuoi dati
Questionario completato
Grazie per aver richiesto un appuntamento senza impegno con un nostro Consulente del Credito e Assicurativo.

Hai inserito correttamente tutti i dati necessari e a breve riceverai una e-mail con un link da convalidare per inviare i tuoi dati.
Affiliato
Studio Pistoia Ovest Sas
Viale Adua, 130/C 51100 Pistoia (PT)

Il nostro staff


  • Alessandro Mascani
    Affiliato
Viale Adua, 130/C 51100 Pistoia (PT)
Zona: Pistoia
Mostra su mappa
Orari: Lun - Ven 9:00 - 13:00 / 15:00 - 20:00 Sab 9:00 - 13:00 / 15:00 - 18:00
Affiliato
Studio Pistoia Ovest Sas
Viale Adua, 130/C 51100 Pistoia (PT)

2026 Tecnocasa Franchising S.p.A. - P. IVA 08365160152 - Via Monte Bianco 60/A 20089 Rozzano (MI). Ogni agenzia ha un proprio titolare ed è autonoma. Privacy policy | Policy utilizzo | Cookie policy